Objektplanung

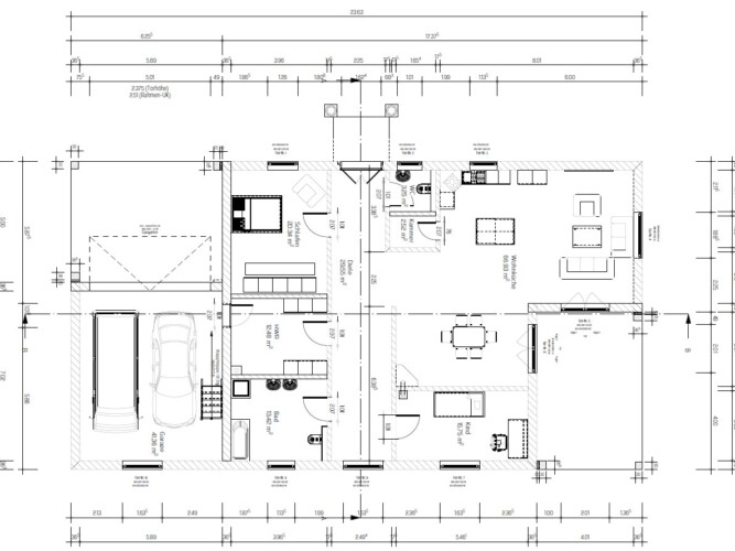
Einfamilienhausbau, Bauantrag

Statische Systeme

Tragwerksplanung

Baugrube

Gründung für Neubau

Gewerbeeinheit

Neubau Wohn- & Geschäftsgebäude

Fundamentierung

Hochregal

Bodenplatten-bewehrung

Mehrstöckiges Wohn- & Geschäftsgebäude

Bewehrungs-planung

Ausführungsplanung

Anschlussdetails

Speziallösungen

Lokomotiv-Unterstand

Fachwerk-Neubau
9/9